Felsplaten monteren

Weergave:


Bezig met laden...
Felsplaat sandwichpaneel monteren
Felsplaat sandwichpaneel monteren

Lees meer

Op basis van offerte

Vraag naar onze korte levertijden

Bekijk
Felsplaten monteren op hout
Felsplaten monteren op hout

Lees meer

Op basis van offerte

Vraag naar onze korte levertijden

Bekijk
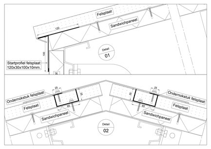
Felsplaten monteren op sandwichpanelen
Felsplaten monteren op sandwichpanelen

Lees meer

Op basis van offerte

Vraag naar onze korte levertijden

Bekijk